V & B ENETZ OCHSLER IMMOBILIEN  AG

Projekt Hirschenpark

Bezug ab 01.03.2027

3.5 Zimmer Wohnung 91.4 m 2 W 1.2
2.5 Zimmer Wohnung 49.6 m 2 W 1.3
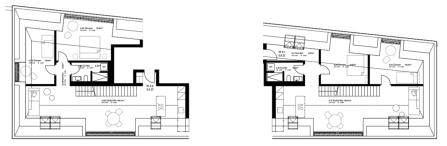
3.5 Zimmer Wohnung 90.2 m 2 W 1.1
Studio 29.8 m 2
3.5 Zimmer Wohnung 91.4 m 2 W 0.2
2.5 Zimmer Wohnung 49.6 m 2 W 0.3
3.5 Zimmer Wohnung 90.2 m 2 W 0.1
3.5 Zimmer Wohnung 90.8 m 2 W -1.2
4.5 Zimmer Wohnung 138.7 m 2 W -1.1
vermietet reserviert vermietet
3.5 Zimmer Wohnung 87.6 m 2 W 2.1 inkl. Dachterrasse 28.2 m 2
3.5 Zimmer Wohnung 91.2 m 2 W 2.2 inkl. Dachterrasse 39.3 m 2
V &B ENETZ OCHSLER IMMOBILIEN  AG
Dachansicht mit Dachterrassen
Vermietungen       gestartet !